Ground Floor for Sale in Eastown Spectrum
Ground Floor
3
154m
3
Description
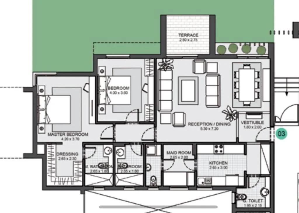
Apartment for Sale in New Cairo , Eastown Spectrum. It's 154m , Semi-Finished , 2 Bedrooms (1 Master) , 2 Bathrooms and 1 Toilet , Reception 2 Pieces , Maid's Room with Bathroom , Private Garden 80m Asking Price: 6,700,000 EGP
Location
City:
Cairo
District:
New Cairo
Compound:
Eastown






.png&w=640&q=75)